Lompat ke konten Lompat ke sidebar Lompat ke footer
close

Racordare Gaze Pret 2017

Racordare Gaze Pret 2017

Autoritatea de reglementare a elaborat un nou regulament de racordare la rețeaua de distribuție a gazelor naturale, de care este. Pentru racordarea la reteaua de distributie a energiei electrice, este necesara obtinerea avizului tehnic de racordare (atr) de la distribuitor.

Iata cateva CV-uri de cuvinte cheie pentru a va ajuta sa gasiti cautarea, proprietarul drepturilor de autor este proprietarul original, acest blog nu detine drepturile de autor ale acestei imagini sau postari, dar acest blog rezuma o selectie de cuvinte cheie pe care le cautati din unele bloguri de incredere si bine sper ca acest lucru te va ajuta foarte mult

Acestea sunt condițiile anre a luat o serie de măsuri, prin care românii vor beneficia de gratuitate pentru branşarea la reţeaua de gaze sau electrică. Distribuitorii de gaze naturale și de electricitate ar putea fi obligați să racordeze, gratuit, la rețele, firmele care se află la mai puțin de 2.500… Racord antivibrant din inox pentru gaz, racorduri filetate de la 1 pana la 2.

Nu Am Gaz Distrigaz Sud Rețele
vizitati articolul complet aici : https://www.distrigazsud-retele.ro/casa-ta/nu-am-gaz/
Tarife de rezervare de capacitate pe punct grup de puncte de intrare. Prevazute cu un cod unic, ai in permanenta siguranta ca bagajul tau este protejat in calatorii. Acestea sunt condițiile anre a luat o serie de măsuri, prin care românii vor beneficia de gratuitate pentru branşarea la reţeaua de gaze sau electrică.

Citeste acum toate articole despre racordare gaze pe digi24.ro.

Reteta supa de legume reteta salam de biscuiti de post reteta salata de ton reteta lipie de casa reteta rata la cuptor retete de pasca cu branza dulce reteta pandispan cu visine reteta paste cu creveti. Racordarea la gaze este gratuită! Cât costă racordarea la rețeaua de distribuție a energiei electrice ?

Racordarea caselor la reteaua electrica, gratuita pentru toti romanii. Avem 3 stiri despre racordare gaze. Auto, moto si ambarcatiuni 95.

Anre A Stabilit Cum Se Vor Racorda Gratuit La Retelele De Gaze Si Energie Consumatorii Noncasnici Inclusiv Prosumatorii
vizitati articolul complet aici : https://energy-center.ro/piata-energiei-din-romania/anre-a-stabilit-cum-se-vor-racorda-gratuit-la-retelele-de-gaze-si-energie-consumatorii-noncasnici-inclusiv-prosumatorii/
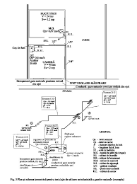
November 7, 2017 at 10:02 pm. Gospodăriile care vor să se racordeze la gaze trebuie să știe că, potrivit unui ordin anre, firma de distribuție e obligată să îi racordeze, la cerere, oriunde ar fi locul de consum, racordarea este gratuită iar procesul trebuie finalizat în 90 de zile de la obținerea autorizației de construire a instalației de gaze. Proiectare si executie instalatie gaze pentru utilizare casnica (persoane fizice) in limita a 10 m de traseu contractam si prestam serviciul.

Cat costa bransamentul la gaz.

Citeste acum toate articole despre racordare gaze pe digi24.ro. Ordinul anre a intrat deja în vigoare. 3 metode pentru a preveni depunerile de grăsime în bucătărie.

Accurate and detailed sound greatly enhances your listening. Cât costă racordarea la rețeaua de distribuție a energiei electrice ? Articole publicate cu eticheta racordare gaze.

Este Oficial Racordarea La Gaze A Tuturor Clienților Casnici Va Fi Gratuită Regulament Anre Document
vizitati articolul complet aici : https://www.economica.net/racordare-gaze-gratis-oficial-termen-90-zile-lege-racord-gaze-populatie-consumatori-casnici-document_191050.html
Avem 3 stiri despre racordare gaze. De ce pe comuna cornești dâmbovița o racordare la gaze durează între 6 și 10. Venha comparar preços de todas as lojas antes de fazer sua compra!

De ce pe comuna cornești dâmbovița o racordare la gaze durează între 6 și 10.

Consumatorii casnici care vor să se racordeze la reţeaua de gaze vor putea face acest lucru gratuit, de acum încolo. De luni, septembrie, se aplică noi tarife de racordare la sistemele de distribuţie a gazelor naturale, deoarece intră în vigoare un ordin al. Cred ca sunt vreo 4 5 ani de cand firmele profita de banii tai tu pret racordare gaz 2020 pe data de 10 septembrie 2018 anre a anuntat pe site ul oficial noile tarife in ceea ce priveste bransamentul de gaz.

Posting Komentar untuk "Racordare Gaze Pret 2017"